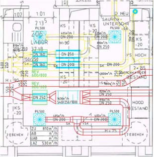
Universität Würzburg Umbau und Sanierung Virologie Bauzeit: 2003 bis 2004 Gebäudenutzung: -Institut Anlagengruppen: Heizung, Lüftung, Sanitär GWA, WBR Herstellsumme (TGA): 300.000€
ZURÜCK
1: Willkommen
2: Ingenieurbüro
3: unternehmen-unsere_ziele_teil1.htm
4: unternehmen-unsere_ziele_teil2.htm
5: unternehmen-unsere_ziele_teil3.htm
6: Ingenieurbüro
7: Willkommen
8: unternehmen-innovative_meilensteine_teil1.htm
9: unternehmen-innovative_meilensteine_teil2.htm
10: unternehmen-innovative_meilensteine_teil3.htm
11: Geschäftsleitung
12: Führende Mitarbeiter
13: unternehmen-buerostruktur-organigramm.htm
14: fachbereiche-anlagentechnik-uebersicht.htm
15: fachbereiche-anlagentechnik-gas_wasser_abwasseranlagen.htm
16: fachbereiche-anlagentechnik-waermeversorgungsanlagen.htm
17: fachbereiche-anlagentechnik-lufttechnische_anlagen_klimaanlagen.htm
18: fachbereiche-anlagentechnik-kaelteanlagen.htm
19: fachbereiche-anlagentechnik-kuechentechnische_anlagen.htm
20: fachbereiche-anlagentechnik-waeschereianlagen.htm
21: fachbereiche-anlagentechnik-medienversorgungsanlagen.htm
22: fachbereiche-anlagentechnik-medizin_und_labortechnische_anlagen.htm
23: fachbereiche-anlagentechnik-feuerloeschanlagen.htm
24: fachbereiche-anlagentechnik-badetechnische_anlagen.htm
25: fachbereiche-anlagentechnik-entsorgungsanlagen.htm
26: fachbereiche-anlagentechnik-gebaeudeautomation.htm
27: fachbereiche-leistungen-uebersicht.htm
28: Fachbereiche
29: Fachbereiche
30: Fachbereiche
31: Fachbereiche
32: Fachbereiche
33: Fachbereiche
34: Fachbereiche
35: Referenzen
36: Referenzen
37: Referenzen
38: referenzen-04_sportstaetten_und_schwimmbaeder.htm
39: Referenzen
40: Referenzen
41: referenzen-07_banken_und_sparkassen.htm
42: referenzen-08_wohnungsbau.htm
43: referenzen-09_gewerbebau_und_industrie.htm
44: referenzen-10_energiezentralen.htm
45: downloads.htm
46: Anfahrt
47: Kontakt
48: mitgliedschaften.htm
49: 01_stellenangebote.htm
50: 02_stellenangebote.htm
51: 03_stellenangebote.htm
52: Impressum
53: Impressum
54: referenzen-buergerhaus_in_der_pleich.htm
55: referenzen-festung_marienberg_wue_trinkwasser.htm
56: referenzen-frankenhalle_wue_generalsan_multi.htm
57: referenzen-fraunhofer_neubau_technikum.htm
58: referenzen-fraunhofer_neubau_technikum_energiez.htm
59: referenzen-exerzitienheim_bischfl_stuhl_zu_wue_generalsan.htm
60: referenzen-exerzitienheim_bischfl_stuhl_zu_wue_generalsan_kommun.htm
61: referenzen-verbandschule_margetsh_generalsan.htm
62: referenzen-imgaging_science_noz1_erlangen_.htm
63: referenzen-imgaging_science_noz1_erlangen_energiez.htm
64: referenzen-johannes_butzbach_gymnasium_miltenberg.htm
65: referenzen-klinikum_uni_erlangen_noz_1ba_nuern.htm
66: referenzen-uni_erlangen_noz_2ba_nuern.htm
67: referenzen-koenig_lud_haus_umruestung_kaeltemasch.htm
68: referenzen-hotel_steigenberger_brandschutzsan.htm
69: referenzen-kreiskrank_lauf_bauabschnitt_4a.htm
70: referenzen-leopoldina_contracting.htm
71: referenzen-leopoldina_bettenhaus.htm
72: referenzen-leopoldina_kranken_schweinf_warentrans.htm
73: referenzen-missio_wue_erweiterung_und_strukturverb.htm
74: referenzen-kongresszentrum_wue.htm
75: refernzen-georg_simon_ohm.htm
76: referenzen-realschule_ochsenfurt.htm
77: referenzen-schulzentrum_hassfurt.htm
78: referenzen-schulzentrum_hassfurt_bt6.htm
79: referenzen-hauptstelle_sparkasse_bad_kissingen_umbau.htm
80: referenz-rasthof_sued_wue_umbau.htm
81: referenzen-uni_wue_virologie.htm
82: referenzen-uni_wue_nervenklinik_san_heizzentrale.htm
83: refrenzen-uni_wue_umbau_physiologie_sicherheits_anpassungsma.htm
84: referenzen-uni_wue_pathologie_umbau_und_san.htm
85: referenzen-vertretung_in_bruessel_des_freistaats_bayern_eu_.htm
86: referenzen-vertretung_in_berlin_des_freistaats_bayern.htm
87: referenzen-zentrum_koerperbeh_wue_heuchelh_generalsan.htm
88: referenzen-missio_kaelte.htm
89: referenzen-realschule_ochsenfurt-sport.htm
90: referenzen-uni_wue-wibapla.htm
91: referenzen-bay_landessiedlung_wue.htm
92: referenzen-klinikum_ab.htm
93: referenzen-klinikum_ab2.htm
94: referenzen-uni-erlangen-kaelteverf_techn.htm
95: referenzen-informationsz_fuer_tierforschung.htm
96: referenzen-hoersaal_pharmakologie.htm
97: referenzen-forschungsprojekt_optik_und_partikelsy.htm
98: referenzen-landesanstalt_wein_und_gartenbau.htm
99: referenzen-interimsgebaeude_uni_erlangen.htm
100: referenzen-frauenklinik.htm
101: referenzen-missio_imc.htm
102: referenzen-missio-geburtshilfe.htm
103: referenzen-zfk-sport.htm
104: referenzen-hotel-strauss_wue.htm
105: referenzen-zfk-internat_wue.htm
106: referenzen-rathaus_adelsdorf.htm
107: referenzen-ab_kaelte_bhkw.htm
108: referenzen-sparkasse_bad_kissingen_argon.htm
109: kontakt-dankesseite.htm